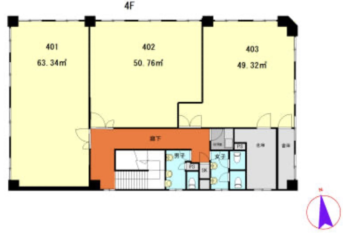
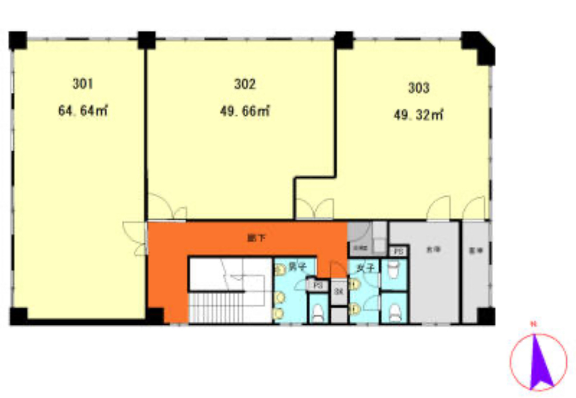
物件概要
Honmachi 360|福島県郡山市本町2丁目1-1
クリック操作により、建物内部を3Dでご覧いただけます。
本ツアーでは、2階までの空間をご確認いただけます。
1階
エントランスから2階へと続く階段は、
視線が抜ける開放的な構成により、
建物全体に落ち着きと品のある印象をもたらします。
1階駐車場からの動線も明快で、
日常の移動を快適に行える設計です。
お問合せ
内覧のご希望やご不明点がございましたら、お気軽にお問合せください。
